上海维旺迪阀门有限公司

关闭刀闸阀的处理密集的阀门和泥浆混合物 刀闸阀尺寸从2“至24”(英寸)一块铸体,耐腐蚀不锈钢 刀闸阀尺寸3“ - 24”(英寸)重型制造碳钢或不锈钢刀闸阀阀体
1 2 3
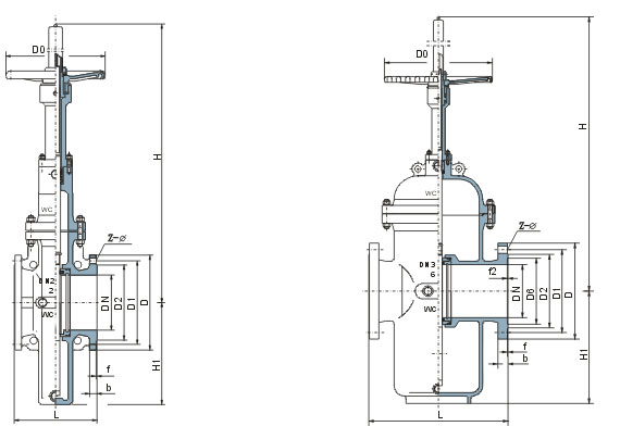
手动带导流孔平板闸阀
您现在的位置:首页 > 产品展示 > 闸阀
手动带导流孔平板闸阀

20091222011331%e6%89%8b%e5%8a%a8%e5%b8%a6%e5%af%bc%e6%b5%81%e5%ad%94%e5%b9%b3%e6%9d%bf%e9%97%b8%e9%98%80.jpg

产品说明:

系列型号:Z43(4)F(HYD)
连接方式:法兰
结构形式:3-单闸板、4-双闸板
密封性质:H-合金钢,Y-硬质合金,D-渗氮钢,F-增强聚四氟乙烯
公称通径:DN251000mmNPS1"40"
公称压力:PN1.016.0MPaClass150900Lb
驱动方式:手动、伞齿轮传动、气动、电动 、液动
该系列阀门具有密封性能可靠、启闭力矩小、具有抗硫耐磨、使用寿命长、可通毛球清扫管线等特点;适用水、石油、天然气、蒸汽等非腐蚀性和腐蚀性介质的管路系统中作启闭装置,特别适用于石、油、气、长输管线等领域。

抗硫阀门型号前加“K”、调节型阀门型号前加“L”、耐磨型F后加“M”

2008429153934680.jpg

 

2008429153922416.jpg

 

DN

PN16
PN25
150Lb

PN40
PN64
300Lb

PN40
PN64
PN100

PN100
600Lb

PN160
PN200

900Lb
1500Lb

25

165

165

165

216

250

229

32

165

165

165

229

250

267

40

178

178

250

241

280

292

50

178

216

250

292

280

330

65

190

241

280

330

315

356

80

203

283

310

356

380

381

100

229

305

350

432

425

457

125

254

381

400

508

480

559

150

267

403

450

559

530

610

200

292

419

550

660

620

737

250

330

457

650

787

730

838

300

356

502

750

838

850

965

350

381

762

850

889

980

1029

400

406

838

950

991

1100

1130

450

432

914

1050

1092

1200

1219

500

457

991

1150

1194

1250

1321

600

508

1143

1350

1397

1450

1549

 

  • PZ73TC陶瓷刀型闸阀
  • 液动刀型闸阀
  • 陶瓷刀型闸阀
  • 手动对夹式刀型闸阀
  • 手动刀型闸阀