上海维旺迪阀门有限公司

关闭刀闸阀的处理密集的阀门和泥浆混合物 刀闸阀尺寸从2“至24”(英寸)一块铸体,耐腐蚀不锈钢 刀闸阀尺寸3“ - 24”(英寸)重型制造碳钢或不锈钢刀闸阀阀体
1 2 3
ZBSF不锈钢电磁阀
您现在的位置:首页 > 产品展示 > 电磁阀
ZBSF不锈钢电磁阀

ZBSF不锈钢电磁阀,ZBSF不锈钢电磁阀厂家|上海ZBSF不锈钢电磁阀-上海维旺迪阀门有限公司

产品说明:

概述
    ZBSF
系列全不锈钢电磁阀是工业过程自动化控制系统的执行器。它在接受电控信号后能自动开启或关闭,实现对管道中的流体介质的通断或流量调节控制。
   
本系列电磁阀可广泛地应用于纺织、印刷、化工、塑料、橡胶、制药、食品、建材、机械、电器、表面处理等生产和科研部门以及浴室、食堂、空调等人们日常生活设施中。
    ZBSF-Y
系列电磁阀主要用于腐蚀液体、超净液体和食用液体等液体介质的控制。ZBSF系列电磁阀主要用于腐蚀气体、超净气体等气体介质控制。
主要技术参数

工作介质

腐蚀性气体、超净流体、食用流体ZBSF-1:气体用
ZBSF-1Y
: 液体用 ZBSF-2:气体用 ZBSF-2Y:液体用

介质温度

ZBSF-11Y):≤60℃
ZBSF-2
2Y):≤200℃

公称压力(Mpa

1.6

工作压差(Mpa

0~1.6

电源电压

AC220V其余规格可作特殊订货

使用寿命

JB/T7352-94规定

额定流量系数(KV

泄露量(ml/min

JB/T7352-94·F规定

公称通径(mm

10

15

20

25

32

40

50

功耗

AC≤70VA

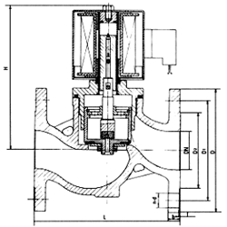
安装尺寸


%E5%85%A8%E4%B8%8D%E9%94%88%E9%92%A2%E7%94%B5%E7%A3%81%E9%98%80%E7%BB%93%E6%9E%84%E7%A4%BA%E6%84%8F%E5%9B%BE.gif

 

DN

L

H

D

D1

D2

b

f

n-d

10

115

148

Φ90

Φ60

Φ41

14

2

4-Φ14

15

115

148

Φ95

Φ65

Φ46

14

2

4-Φ14

20

115

148

Φ105

Φ75

Φ56

16

2

4-Φ14

25

125

148

Φ115

Φ85

Φ65

16

3

4-Φ14

32

150

182

Φ140

Φ100

Φ76

18

3

4-Φ18

40

165

182

Φ150

Φ110

Φ84

18

3

4-Φ18

50

190

192

Φ160

Φ125

Φ99

20

3

4-Φ18

65

290

265

Φ185

Φ145

Φ118

20

3

8-Φ18

80

310

276

Φ200

Φ160

Φ132

20

3

8-Φ18

100

350

373

Φ220

Φ185

Φ156

22

3

8-Φ18

125

400

416

Φ250

Φ210

Φ184

22

3

8-Φ18

150

480

440

Φ285

Φ240

Φ211

24

3

8-Φ22

 

  • SV25-211D/212D/111D电磁阀
  • RAPHAEL电磁阀
  • 8215G004电磁阀
  • SCG531C001MS电磁阀
  • NF8327B112电磁阀